Alicja II

Specyfikacja

Powierzchnia zabudowy: 62 + 40 m2
 

Dom Energooszczędny, Ochrona termiczna 0.15W lub 0.18W (zależnie od wyboru)  normy 2021 roku

Osobny dodatkowy koszt projektu budowlanego + adaptacja + kierownik budowy lub na zgłoszenie

Posiadamy wizualizacje budynków i tego jak docelowo mają wyglądać oraz zdjęcia z różnych etapów rozwoju budowy zrobione przez nas.

Projekty wykonujemy indywidualnie dla każdego klienta i nie jest on na sprzedaż jeśli nie podejmiemy budowy.

Dom Letniskowy (Docieplony)

Stan Surowy Zamknięty

Netto
PLN 180 000,00
  • Konstrukcja domu z Bala 44mm
  • Konstrukcja ścian działowych z przekroju belek 145/45 świerk C24
  • Konstrukcja dachu-dwuspadowa
  • Pokrycie dachu- blachodachówka
  • Okna PCV 3-szybowe
  • Montaż z impregnacją legarów
  • Transport

Stan Deweloperski

Netto
PLN 250 000,00
  • Rozprowadzenie elektryki z materiałem + rozdzielnia
  • Rozprowadzenie hydrauliki z materiałem pod korek
  • Ocieplenie podłogi styropianem 100mm
  • Malowanie jednokrotne Jednokrotne Remmers HK Lasur
  • Ocieplenie podłogi 100mm wełną drzewną
  • Ocieplenie ścian wewnątrz 100mm wełną drzewną
  • Ocieplenie dachu 100mm wełną drzewną

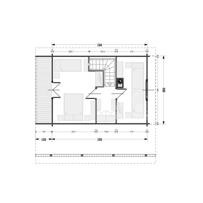
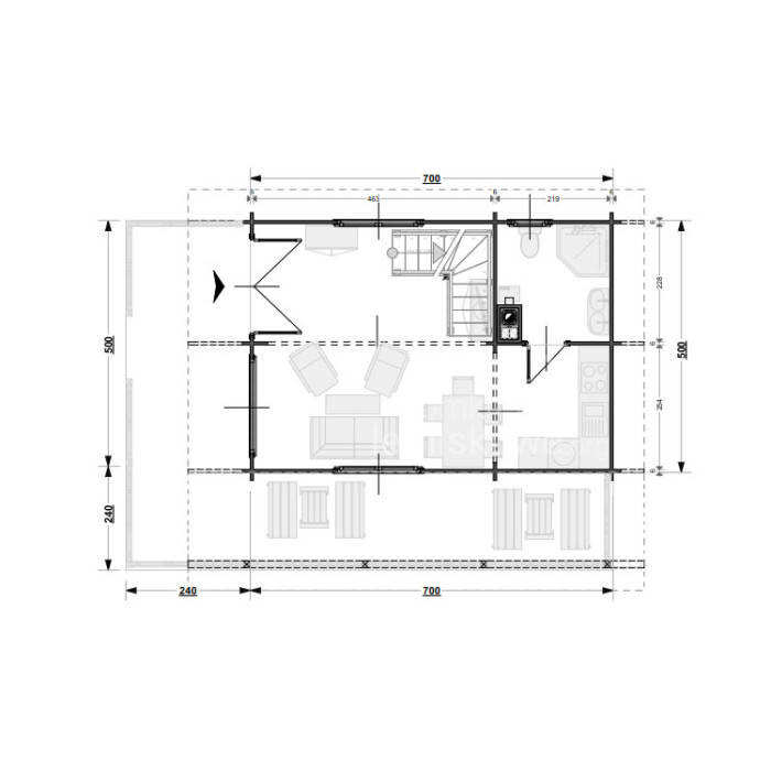
Dom letniskowy, dane techniczne

Wymiar z el. wystającymi: 500×704,4 cm
Wymiar bez el. wystających: 480×684,4 cm
Grubość ściany: 44 mm
Wysokość ściany: 236 cm
Wysokość w szczycie: 521 cm
Powierzchnia zabudowy: 65 + 27 m2
Powierzchnia dachu: 51 m2
Kubatura konstrukcji: –
Kąt nachylenia dachu: 30o
Wypust dachu: 40 cm
Grubość deski dachowej: 19 mm
Grubosć deski podłogowej: 28 mm
Wymiar belki podwalinowej: 45×95 mm
Ilość drzwi: 1x 900×2050 mm, 3x 800×2050 mm
Ilość okien nieotwieralnych: 2x 900x2050mm (ISO)
Ilość okien uchylnych: –
Ilość okien rozwieranych: –
Ilość okien uch. rozw.: 2x 900×2050 mm (ISO), 1x 650×650 mm (ISO)
Ilość podw. okien uch. rozw.: 2x 1900×2050 mm (ISO)

Mieszkalny Energooszczędny

Stan Surowy Zamknięty(Szkieletowy)

Netto
PLN 215 000,00
  • Konstrukcja domu szkieletowego z przekroju belek 160/60 świerk C24+płyta konstrukcyjna P5 + płyta drzewna pióro-wpust (Naturheld wand 60mm) ściany z zewnątrz + tynk elewacyjny
  • Konstrukcja ścian wewnętrznych z przekroju 145/45 świerk C24
  • Konstrukcja dachu przekrój belek 220/60 świerk C24 + płyta drzewna pióro-wpust (Naturheld Wand 60mm) z belkami stropowymi
  • Konstrukcja ścian działowych z przekroju belek 145/45 świerk C24
  • Konstrukcja dachu-dwuspadowa
  • Pokrycie dachu- blachodachówka
  • Okna PCV 3-szybowe
  • Drzwi zewnętrzne stalowe - ciepłe

Stan Deweloperski (Szkieletowy)

Netto
PLN 285 000,00
  • Rozprowadzenie elektryki z materiałem + rozdzielnia
  • Rozprowadzenie hydrauliki z materiałem pod korek
  • Ocieplenie dachu wełną drzewną (Naturheld flex 160mm) + folia paroizolacyjna + wełna (Naturheld flex 40mm)+ KG bez gładzi
  • Ocieplenie wewnątrz ścian wełną drzewną (Naturheld flex 160mm)+płyta konstrukcyjna P5 + folia paroizolacyjna + ruszt instalacyjny + KG bez gładzi
  • Wygłuszenie ścian działowych wełną 150mm
  • Rozprowadzenie podłogowki + wylewka
  • Ocieplenie podłogi styropianem 100mm
  • Klimatyzacja
  • Rekuperacja
  • Transport

Płyta fundamentowa

  • Płyta fundamentowa zimna- 26 000,00zł
  • Płyta fundamentowa ciepła (styrodur 150mm) - 39 000,00zł

Galeria

Rzuty

Zadzwoń!