Lena I

Dom Energooszczędny, Ochrona termiczna 0.15W lub 0.18W (zależnie od wyboru)  normy 2021 roku

Osobny dodatkowy koszt projektu budowlanego + adaptacja + kierownik budowy lub na zgłoszenie

Posiadamy wizualizacje budynków i tego jak docelowo mają wyglądać oraz zdjęcia z różnych etapów rozwoju budowy zrobione przez nas.

Projekty wykonujemy indywidualnie dla każdego klienta i nie jest on na sprzedaż jeśli nie podejmiemy budowy.

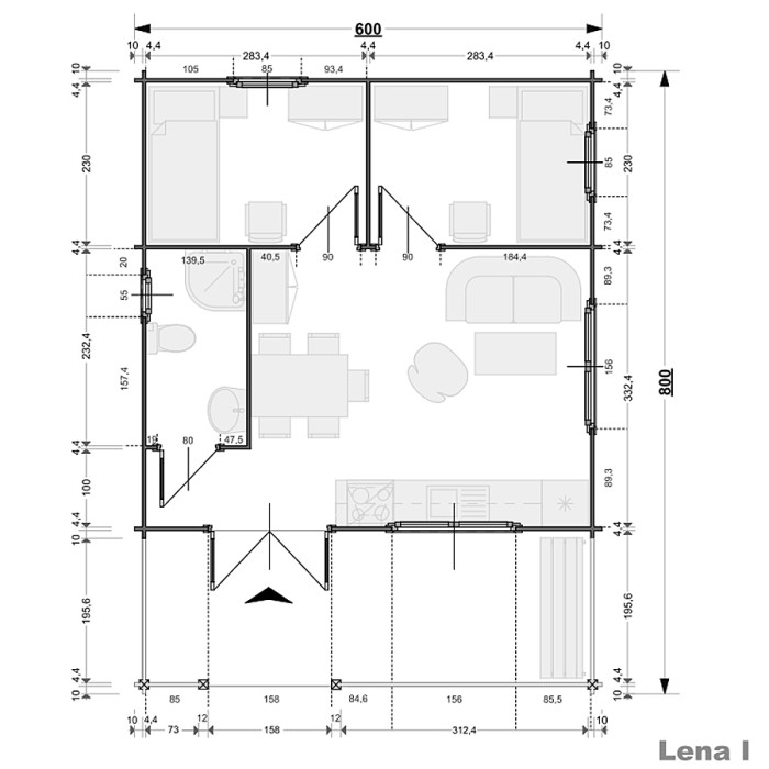
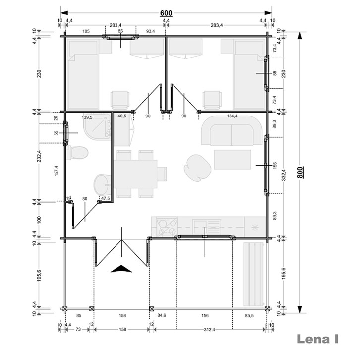
Specyfikacja

Powierzchnia zabudowy: 35 m2
Powierzchnia użytkowa: 33.6 + 11m
 

Stan Surowy Zamknięty

PLN 80 000,00
  • Konstrukcja domu szkieletowego z przekroju belek 160/60 świerk C24+płyta konstrukcyjna P5 + płyta drzewna pióro-wpust (Naturheld wand 60mm) ściany z zewnątrz + tynk elewacyjny
  • Konstrukcja ścian wewnętrznych z przekroju 145/45 świerk C24
  • Konstrukcja dachu przekrój belek 220/60 świerk C24 + płyta drzewna pióro-wpust (Naturheld Wand 60mm) z belkami stropowymi
  • Konstrukcja ścian działowych z przekroju belek 145/45 świerk C24
  • Konstrukcja dachu-dwuspadowa
  • Pokrycie dachu- blachodachówka
  • Okna PCV 3-szybowe
  • Drzwi zewnętrzne stalowe - ciepłe

Stan Deweloperski

PLN 150 000,00
  • Rozprowadzenie elektryki z materiałem + rozdzielnia
  • Rozprowadzenie hydrauliki z materiałem pod korek
  • Ocieplenie dachu wełną drzewną (Naturheld flex 160mm) + folia paroizolacyjna + wełna (Naturheld flex 40mm)+ KG bez gładzi
  • Ocieplenie wewnątrz ścian wełną drzewną (Naturheld flex 160mm)+płyta konstrukcyjna P5 + folia paroizolacyjna + ruszt instalacyjny + KG bez gładzi
  • Wygłuszenie ścian działowych wełną 150mm
  • Rozprowadzenie podłogowki + wylewka
  • Ocieplenie podłogi styropianem 100mm
  • Klimatyzacja
  • Rekuperacja
  • Transport

Płyta fundamentowa

  • Płyta fundamentowa zimna- 15 000,00zł
  • Płyta fundamentowa ciepła (styrodur 150mm) - 22 000,00zł

Rzuty

Zadzwoń!